
Semi-detached Dwellings
Bradford, Yorkshire
Commercial
Planning & Design
A new build pair of semi-detached houses
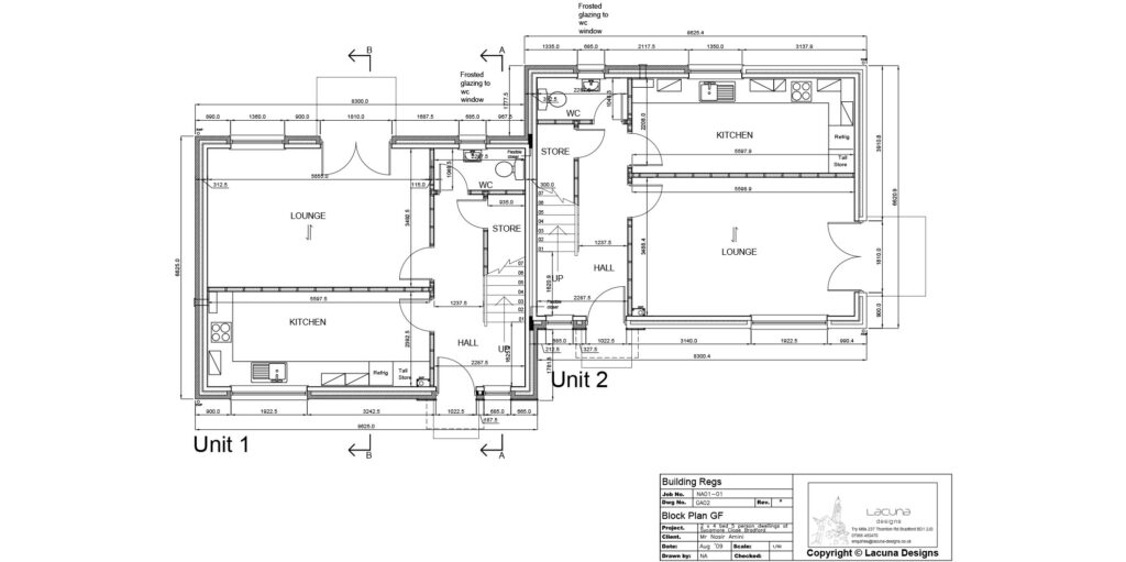
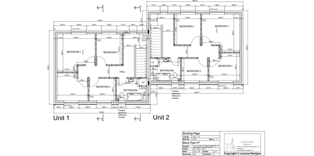
A triangular piece of land at the end of a residential street provided an opportunity for a pair of semi-detached dwellings
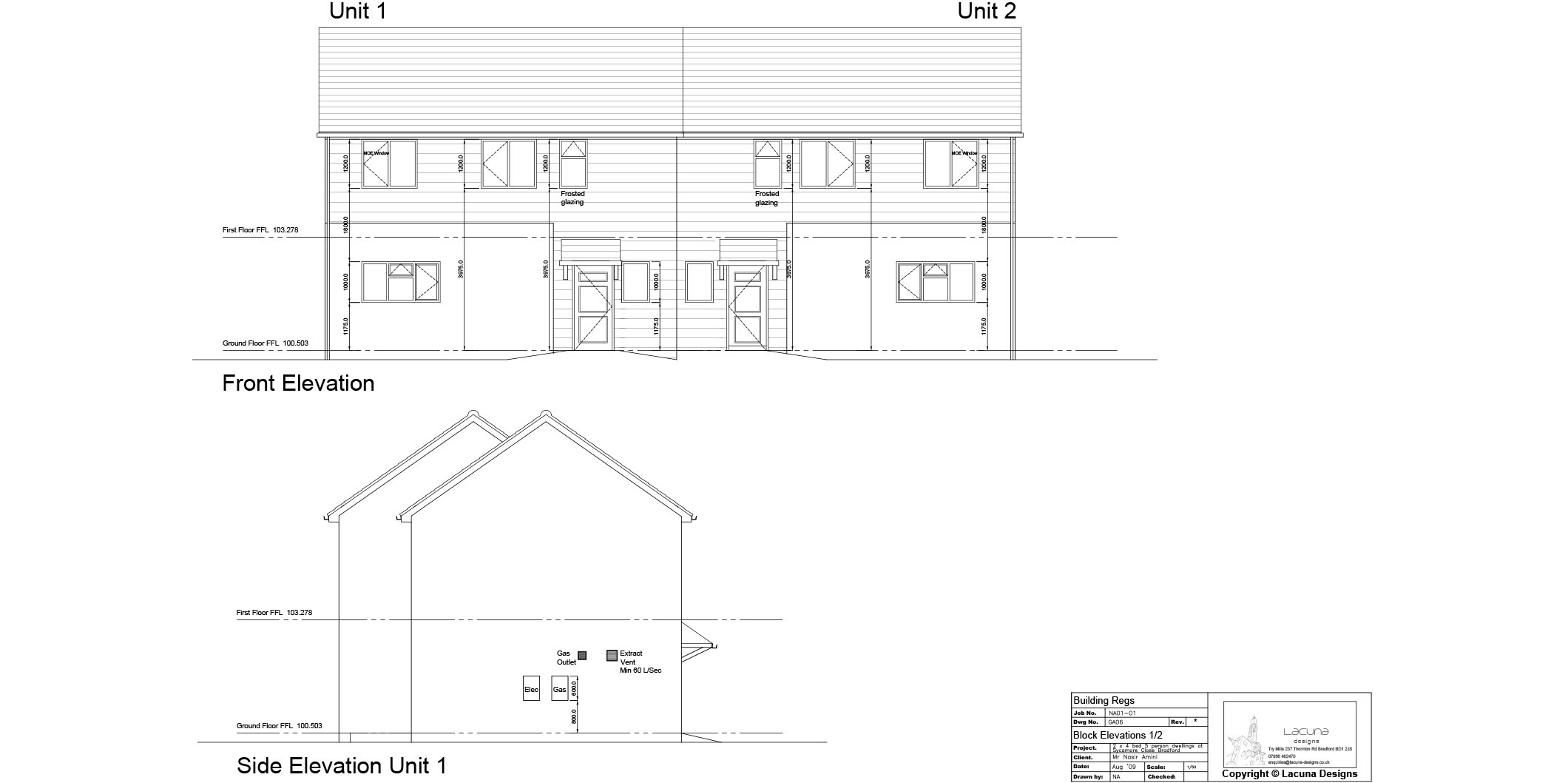
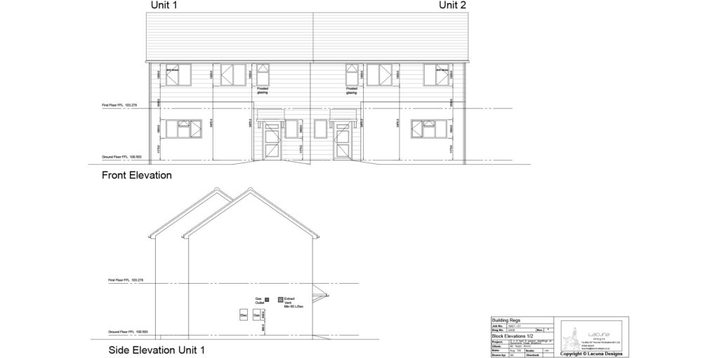
The site was a triangular plot of land at the end of a row of semi-detached houses. The existing houses were Barratts homes built around 4 decades prior and the styling had aged in relation to modern aesthetics.
The design and appearance of the scheme was developed to reflect the vernacular features of the houses surrounding them whilst adding modern cladding and improved entrances.
The layout of the room was carefully considered to provide views for the future residents and also allow light penetration into the properties, as such the internal layout to both semi-detached dwellings differed.



